跑狗网论坛新一代,2021新版脑筋急转弯,猜谜语大全及答案搞笑,2019脑筋急转弯1-153期免费,港彩二四六下一期预测

LS型螺旋输送机分类
奥创机械
2024-01-11 16:01:01
0

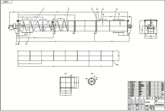
LS螺旋输送机组成:螺旋输送机通常由螺旋输送机本体、进出装置、驱动装置三大部分组成。 螺旋输送机本体由头节、中间节、尾节三部分组成。一般情况下,出厂总装时将螺旋输送机中间节按长度长短依次排列,最长的中间节靠近头节,相同长度的中间节则挨在一起,如果有特殊要求,则在订货时给出排列顺序。 在螺旋输送机头节内装有支推轴承承受轴向力,在中间节和尾节内装有用轴承支承螺旋轴,此外,在螺旋输送机尾节内还装有可轴向移动的径向轴承以补偿螺旋轴长度的误差和适应温度的变化。

螺旋输送机螺旋面的形式有实体螺旋(S制法)和带式螺旋(D制法)两种。各螺旋轴之间采用法兰式联接, 保证了联接轴的互换性,便于维修。 螺旋输送机机盖为瓦片式并用盖扣夹紧在机壳上,若需改进密封性能,用户可自行在机盖与机壳间加防水粗帆布。 螺旋输送机进、出料装置有进料口,方型出料口,手推式出料口,齿条式出料口四种,由用户在使用现场在机体上开口焊接。布置螺旋输送机进、出料口位置时应注意保证料口至端部的距离,同时避免料口与吊轴承加油杯、机壳联接法兰、底座等相碰。

LS型螺旋输送机分类:

按螺旋输送机驱动方式分:

C1制法--螺旋输送机长度小于35m时,单端驱动。

C2制法--螺旋输送机长度大于35m时,双端驱动。

按螺旋叶片形式分:

S制法--实体螺旋叶片

D制法--带式螺旋叶片

J制法--浆叶式螺旋叶片

按螺旋输送机中间吊轴承种类分:

M1--为滚动吊轴承。采用80000型密封轴承,轴盖上另有防尘密封结构,常用在不易加油、不加油或油对物料有污染的地方,密封效果好,吊轴承寿命长,输送物料温度t≤80℃。

M2--为滑动吊轴承。设有防尘密封装置,常用有铸铜瓦,MC耐磨尼龙瓦,还有用于常用在输送物料温度比较高(t>80℃)或输送液状物料的铜基石墨少油润滑瓦。

LS螺旋输送机参数:

LS型螺旋输送机分类

LS螺旋输送机图纸:

LS型螺旋输送机分类

相关内容

热门资讯

主站蜘蛛池模板: 888影视网科幻电影大全| 哪一天我们会飞| 澳门开奖开奖结果开奖记录| 澳门一肖一码100%精准25期| 澳门扶贫一码网站 | 新澳精准资料免费提供网站有哪些平台 | 成人用品店卖的是哪些东西| 118澳门开奖记录| 2024澳门今晚开什么码| 摔跤吧!爸爸| 香港澳门博发世家| 2024年全年开奖结果| l澳门资料,澳门资料库525656| 246天天天彩天好彩资料大全168 | 澳门开彩开奖+结果2023澳门81期 奥门开彩开奖结果2023澳门今天开奖 | 傲慢与偏见与僵尸| 澳门最准最快网站免费资料| 九七电影网观看| 2024年澳门一肖一码期期准‘| 澳门49图库龙门客栈| 2o24新澳门正版精准资料| 2024今晚澳门开奖码| 4949澳门六开奖结果资料查询| 恶魔的崛起高清完整版| 888影视网喜剧高清| 超级教师第二季全集高清免费| 477777开奖直播软件优势| 电视剧凡人的品格免费观看| 2024一肖一码100精准大全| 澳门九肖中特资料大全| 新澳彩最新资料| cc彩开奖结果2024开奖记录| sci体育类期刊| 秋天里的春天| 体育科研是核心期刊吗| 2024新奥彩开奖结果记录| 三傻大闹宝莱坞| 澳彩资料网正版图片大全集| 澳门王中王论坛开奖资料| 一三全四中本期精准生肖| 澳门四肖八码凤凰网|